Die Fassade präsentiert sich als fein geputzte WDVS-Oberfläche, rhythmisch gegliedert durch bodentiefe und brüstungshohe Fensterformate sowie subtile Vor- und Rücksprünge, die dem Baukörper Tiefe und Plastizität verleihen. Das Satteldach wird durch eine rot ausgeführte Indach-Photovoltaikanlage neu interpretiert: Sie verbindet die ortstypische Dachgestaltung mit einer zeitgemäßen, integrierten Form der Energiegewinnung und verleiht dem Gebäude ein markantes, technologisch modernes Erscheinungsbild. Loggien nach Norden und Westen öffnen die kompakte Kubatur und schaffen geschützte Außenräume, die sich selbstverständlich in die Architektur einfügen.
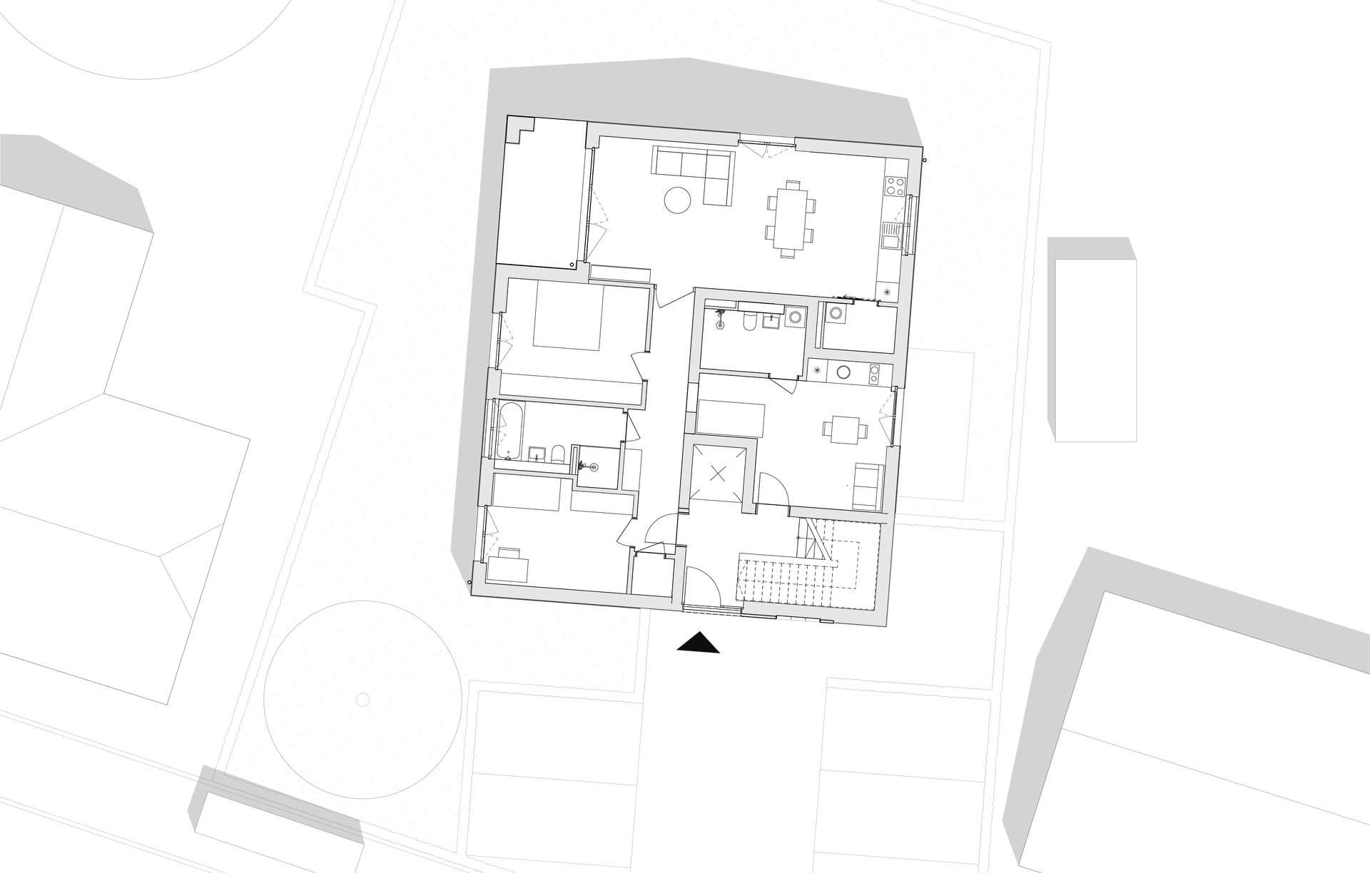
Die beiden Wohnungstypen sind so konzipiert, dass sie unterschiedliche Lebensentwürfe unterstützen. Die größeren Wohnungen bieten mit einem großzügigen Wohn- und Essbereich, direktem Zugang zur Loggia und zwei gut proportionierten Schlafzimmern idealen Raum für Familien. Die kompakteren Einheiten ermöglichen ein effizientes, modernes Wohnen für Singles oder Paare, ohne auf Qualität oder Raumgefühl zu verzichten. Ergänzende Lagerflächen im Untergeschoss schaffen Ordnung und ermöglichen eine klare, aufgeräumte Wohnatmosphäre in den oberen Geschossen.
BGF: 700m²
Bauherr: Brimmo GmbH (Bauherrenvertreter)
Architekt: ft+ architekten, Braunschweig
Leistungen: LPH 1-4 nach HOAI
Projektarchitekten: Robert Schröder








