In Wolfsburg-Vorsfelde entsteht ein neues Wohnhaus für Kinder und Jugendliche mit besonderem Unterstützungsbedarf. Ziel des Entwurfs ist es, ein gemeinschaftliches und inklusives Umfeld zu schaffen, in dem die Bewohnerinnen und Bewohner in familiären Strukturen zusammenleben können. Die umgebende Bebauung am Sophienring ist geprägt von Einfamilienhäusern mit Sattel- oder Flachdächern in massiver Bauweise – ein charakteristisches Bild, in das sich der Neubau selbstverständlich einfügt.
Das rund 1.450 m² große Grundstück bietet Raum für das als freistehendes Einfamilienhaus konzipierte Gebäude sowie eine großzügige private Außenfläche aus Garten- und Aufenthaltsbereichen. Ergänzend stehen zwei PKW-Stellplätze und Fahrradstellplätze zur Verfügung.
Der Entwurf nimmt die Maßstäblichkeit und Körnung seines Umfelds auf und gliedert das Gebäude in kleinteilige, harmonisch proportionierte Bauteile. Robuste, hochwertige Materialien gewährleisten eine lange Lebensdauer und schaffen ein homogenes Erscheinungsbild in Bezug auf die Nachbarbebauung. Ein Rücksprung im Baukörper formt einen einladenden Vorgarten und einen klar definierten Eingangsbereich. Die Einbindung in die Natur wird durch die grüne, geschützte Außenfläche auf der Gebäuderückseite fortgesetzt.
Auch im Inneren setzt das Gebäude auf eine Materialität, die sowohl Beständigkeit als auch Geborgenheit vermittelt: Der Vormauerziegel wird als raumbildendes Element in den Innenraum hineingezogen und prägt diesen gemeinsam mit der sichtbar geplanten Holzbalkendecke. Die Kombination aus massiven, langlebigen Oberflächen und warmen haptischen Materialien schafft eine robuste, zugleich atmosphärische Wohnumgebung – ein Umfeld, das Kindern und Jugendlichen Stabilität, Orientierung und ein Gefühl von Zuhause bietet.
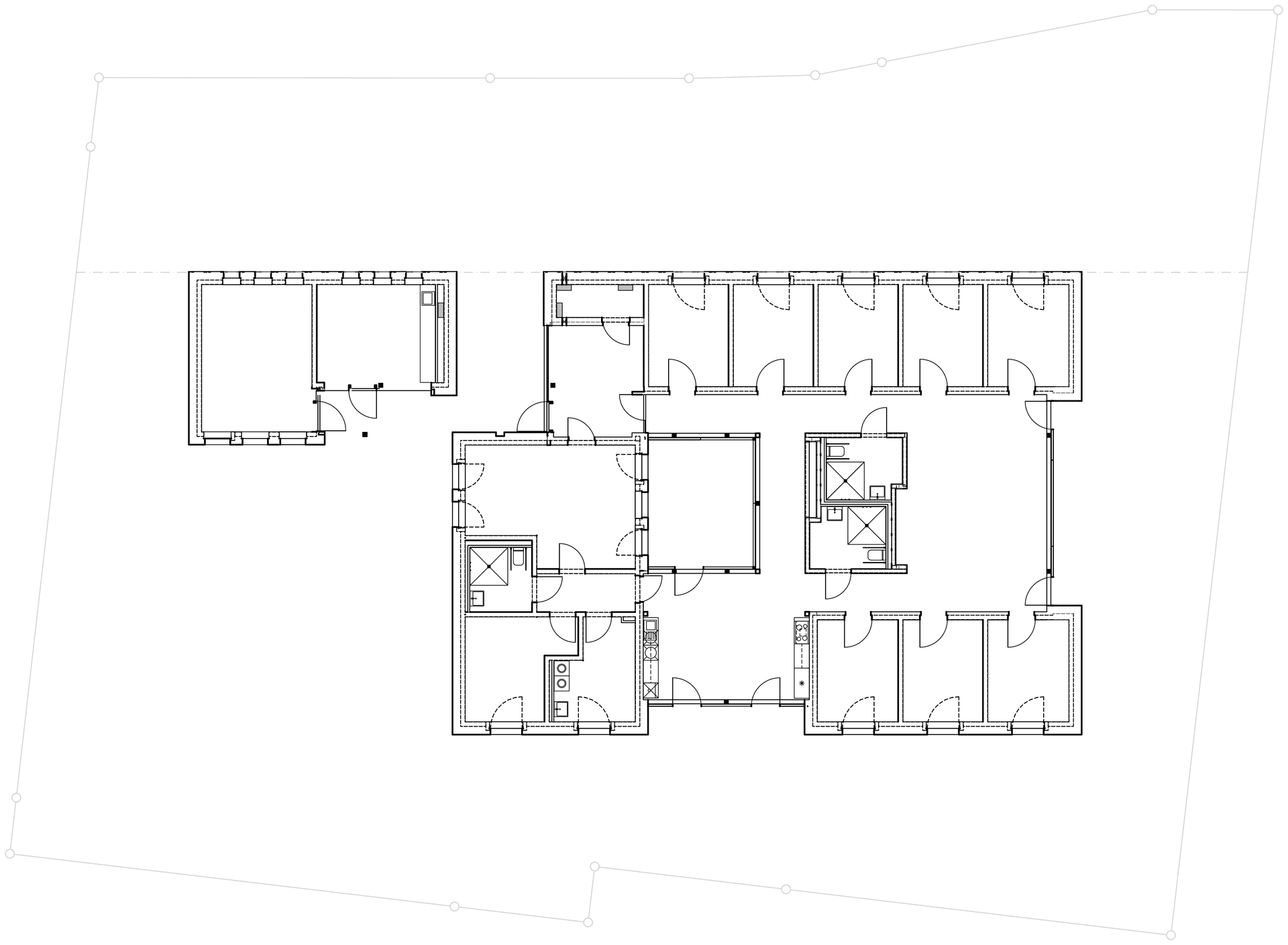
Das Haus bietet Platz für acht Kinder und Jugendliche sowie zwei Betreuende und ist vollständig barrierefrei geplant. Um ein ausgewogenes Verhältnis zwischen Rückzug und Gemeinschaft zu ermöglichen, werden die privaten Zimmer über einen umlaufenden Flur erschlossen. Dieser integriert Sitznischen als Orte des Verweilens und verbindet zugleich Küche und Wohnraum. Über den überdachten Eingangsbereich sind zudem eine Werkstatt und ein Musikzimmer angebunden.
Die individuell gestaltbaren Zimmer sind barrierefrei und auch für Rollstuhlnutzende geeignet. Die gemeinschaftlich genutzten Duschbäder werden über Oberlichter mit Tageslicht versorgt und sind direkt vom Flur zugänglich. Auch der Bereich der Betreuenden ist durchgängig barrierefrei und rollstuhlgerecht geplant; ein Lichthof schafft visuelle Verbindungen zum Kinder- und Jugendbereich.
Den Bewohnerinnen und Bewohnern wird eine vielfältige Umgebung zum Leben, Lernen, Austauschen und Kreativsein geboten. Der Innenhof bringt natürliches Licht tief ins Gebäude und erweitert den Gemeinschaftsbereich nach innen. Der großzügige Außenraum lädt zum Spielen, Entspannen und zu gemeinschaftlichen Aktivitäten ein – eine Verbindung zwischen Innen und Außen, die den Naturbezug des Hauses konsequent fortführt.
BGF: 450m²
Bauherr: Diakonisches Werk Wolfsburg gemeinnützige GmbH
Architekt: ft+ architekten, Braunschweig
Nachhaltigkeit: KFW KFN 40 EE
Leistungen: LPH 1 - 8 nach HOAI
Projektarchitekten: Robert Schröder, Stefanie Kunze
Mitarbeit: Caroline Fischer, Till Watzlawik















