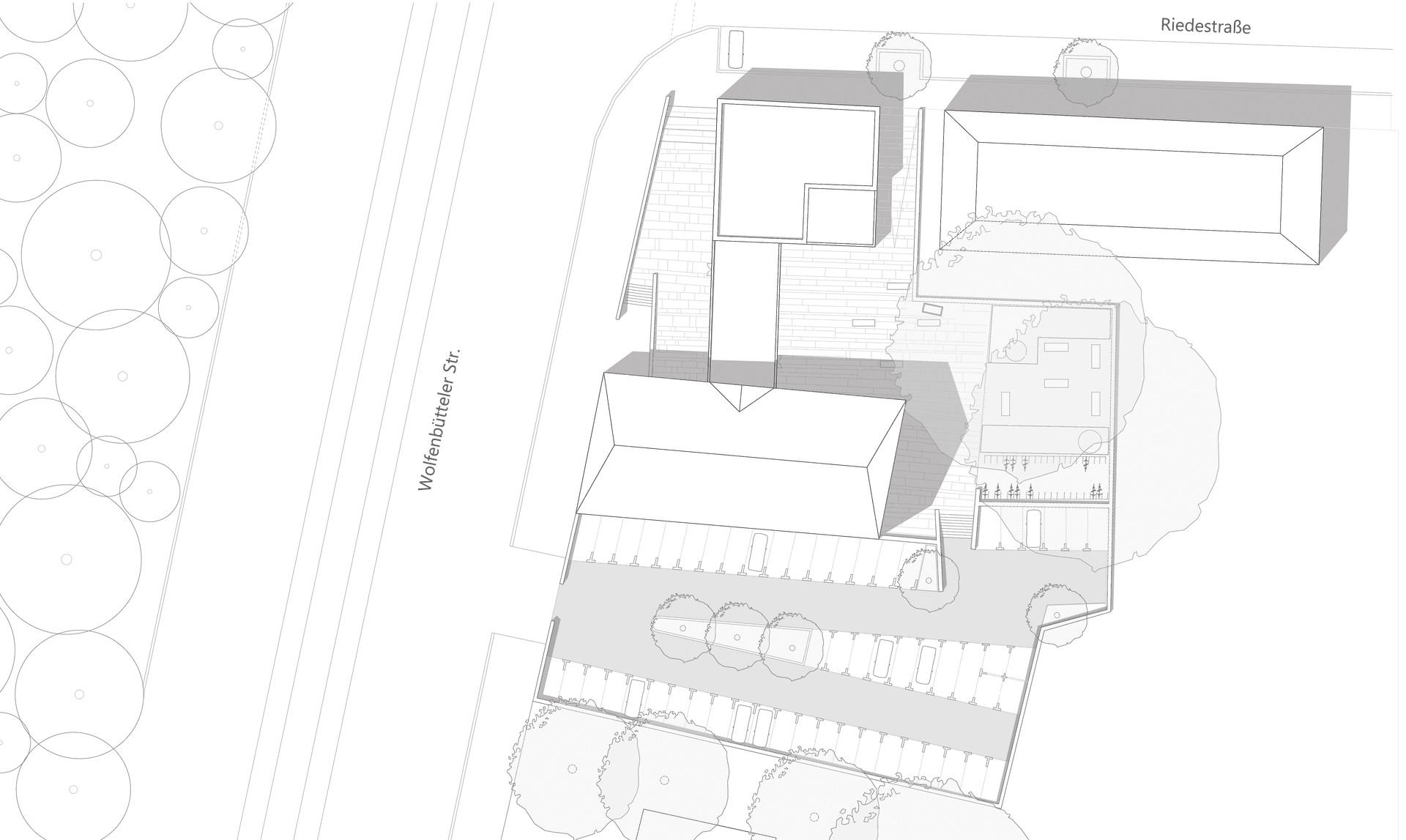
Der Wettbewerbsentwurf schließt die städtebauliche Lücke an der Riedestraße Ecke Wolfenbütteler Straße und ergänzt die historische Blockrandbebauung in offener Bauweise. Ein zweigeschossiger Verbindungsbau bindet das denkmalgeschützte Fachwerkgebäude behutsam an den Neubau an. Dadurch entstehen ein einladender Empfangsplatz zur Straße sowie ein privater, begrünter Innenhof mit hoher Aufenthaltsqualität.
Die Stellplätze werden im tiefer liegenden südlichen Grundstücksbereich angeordnet und durch zusätzliche Grünstrukturen harmonisch in das Gesamtensemble eingebettet.
Der Neubau präsentiert sich als modernes, klar gegliedertes Gebäude. Seine sichtbare Tragstruktur nimmt gestalterisch Bezug auf das historische Fachwerk, ohne dessen Charakter zu überlagern. Auch im Inneren bleibt der Dialog zwischen Alt und Neu bewusst erlebbar.
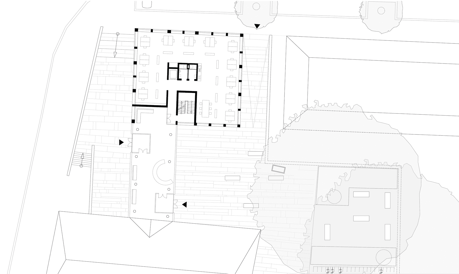
Der Entwurf schafft offene, lichtdurchflutete Arbeitsbereiche mit starkem Bezug zum Außenraum. Das bestehende Fachwerkhaus bietet aufgrund seiner kleineren Fassadenöffnungen eher zurückgezogene, ruhigere Arbeitsplätze – ein spannender Kontrast, der den verschiedenen Bedürfnissen gerecht wird.
Im zweigeschossigen Verbindungsbau befinden sich im Erdgeschoss der Empfang und im Obergeschoss offene Besprechungszonen. Dieser Bereich wird zur zentralen Schnittstelle beider Gebäudeteile, an dem Mitarbeiter zusammenkommen und den Ausblick in den Bürgerpark genießen können.
BGF: 1.000m²
Bauherr: Streiff Holding GmbH & Co.KG
Architekt: ft+ architekten, Braunschweig
Leistungen: Geschlossener Wettbewerb, 1.Preis
Projektarchitekten: Tedi Lamani





