Das multifunktionale Raummöbel fügt sich präzise in die alte Werkhalle, den Hauptsitz der Hoffmann Maschinen- und Apparatebau GmbH in Lengede, mit ihrem Ziegelsteinmauerwerk ein. Als klare Struktur im Raum und zugleich verbindendes Element zwischen den unterschiedlichen Funktionen schafft es ein spannungsvolles Zusammenspiel von Alt und Neu.
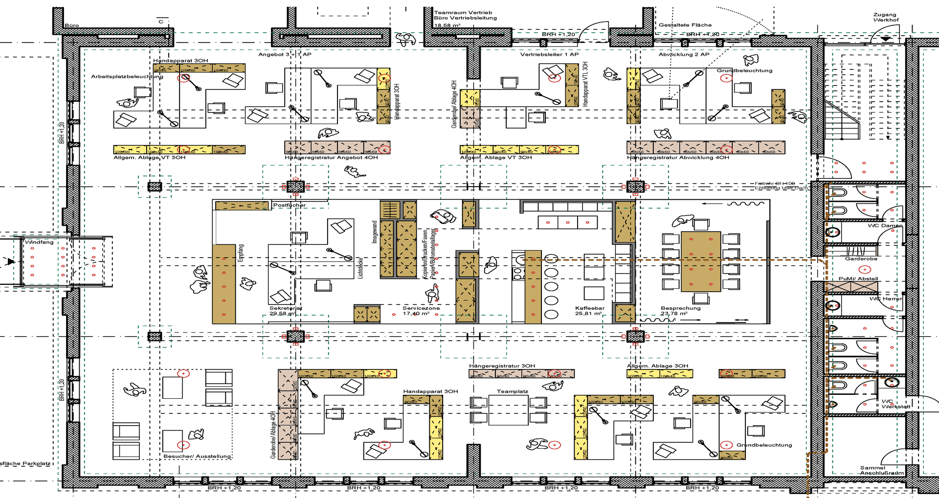
Am Standort der Hoffmann Maschinen- und Apparatebau GmbH in Lengede wird eine historische Werkhalle in ein großzügiges, zeitgemäßes Büro- und Kommunikationszentrum umgewandelt. Durch die Umnutzung des rund 500 m² großen Kopfbereichs der Halle entstehen ein repräsentatives Großraumbüro sowie neue Bereiche für Besucherinnen, Besucher und Mitarbeitende. Ziel des Entwurfs ist es, die Arbeits- und Aufenthaltsqualität deutlich zu steigern und gleichzeitig den industriellen Charakter der Bestandsarchitektur sichtbar zu erhalten.
Ein klar gegliedertes Raumkonzept nutzt das vorhandene Stützenraster der Halle und hält neue Einbauten bewusst auf Abstand zur bestehenden Konstruktion. Ein neuer, mit Stahl verkleideter Eingangswindfang führt vom Parkplatz in den Innenraum, wo ein zentraler, freistehender Körper Empfang, Sekretariat, Servicezone mit Kopierer- und Druckbereich, eine Kaffeebar sowie einen Besprechungsraum bündelt. Rechts und links davon sind die Arbeitsplätze organisiert: im Norden die Vertriebsabteilung mit Team- und Leitungsarbeitsplatz, im Süden weitere Arbeitsbereiche mit zentralem Teamplatz und einer Wartezone, die zugleich für Ausstellungen und Firmenpräsentationen genutzt werden kann.
Großzügige Ein- und Durchblicke, vielfältige Ablage- und Stauraumangebote sowie der neue Ausblick auf eine gestaltete Außenfläche zum Werkhof unterstützen ein offenes, kommunikatives Arbeitsumfeld. Ergänzend wird der Zugang zu den Konstruktionsbüros über eine aufgewertete Erschließung neu geordnet, der ehemalige Lastenaufzug zurückgebaut und die Fassade großzügig verglast. Modernisierte Sanitärbereiche mit ergänzten Funktionen runden das Umbau- und Ausbaukonzept ab und machen die ehemalige Werkhalle zu einem repräsentativen, zukunftsfähigen Arbeitsort.
BGF: 500m²
Bauherr: Hoffmann Maschinen- und Apparatebau GmbH, Lengede
Architekt: ft+ architekten, Braunschweig
Leistungen: LPH 1-8 HOAI
Projektarchitekten: Stefan Friedrichs, Nicolai Thiele











